Thumbnail Slider

9 Pinewood Avenue Beverly MA 01910

Beverly Single Family Home For Sale
9 Pinewood Avenue, Beverly, MA 01915 - $655,000

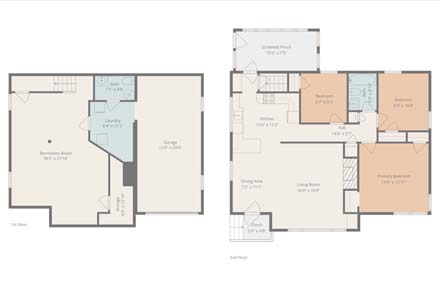
Charming Ranch style home in North Beverly neighborhood offering single level living with open floor plan Living and Dining Rooms with fireplace, picture window and hardwood floor leading to updated Kitchen with peninsula and pantry leading covered back porch and fenced yard with patio. Home has 3 bedrooms, 1.5 bath and a finished lower level Recreation Room with half bath, laundry, utilities and storage Lower level also has access to the one-car garage opening to driveway and additional parking. Heat is forced hot air with central air and separate hot water tank. Beverly "The Garden City" and the "Birthplace of America's Navy", 20 miles north of Boston, blends suburban living with a vibrant, walkable downtown, scenic beaches, and easy commuting via five MBTA rail stations and easy access to highways going North and South.

Exclusively Offered at $655,000

Open Houses April 11th and April 12th - 1:00 to 2:30pm


View Listing Sheet
View Floor Plans
Call Kathleen Sullivan for your private showing at 781-771-9949.